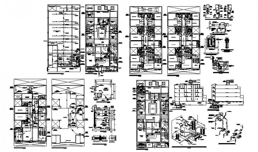
Sanitary line detail drawing of government building in AutoCAD file.
Description
Sanitary line detail drawing of government building in AutoCAD file. This file includes the detail drawing of the building with sanitary line detail, plumbing detail, isometric diagram, all floor layout detail, dimensions, description, etc.

Uploaded by:
Eiz
Luna
