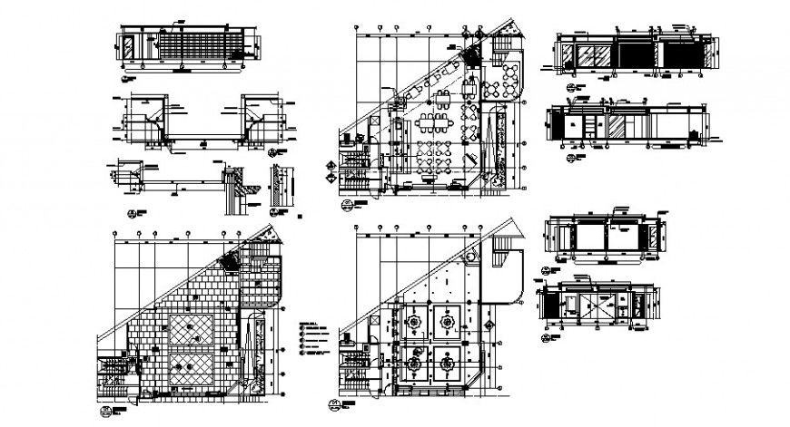
Plan and sectional of hotel building 2d view layout file in autocad format
Description
Plan and sectional of hotel building 2d view layout file in autocad format, plan view detail, wall and flooring detail, dimension detail, door and window detail, section line detail, furniture blocks detail, floor level detail, different sections detail, RCC structure, staircase detail, dining area detail, kitchen area detail, furniture table and chair detail, etc.

Uploaded by:
Eiz
Luna

