All floors electrical layout plan details of housing apartment building dwg file
Description
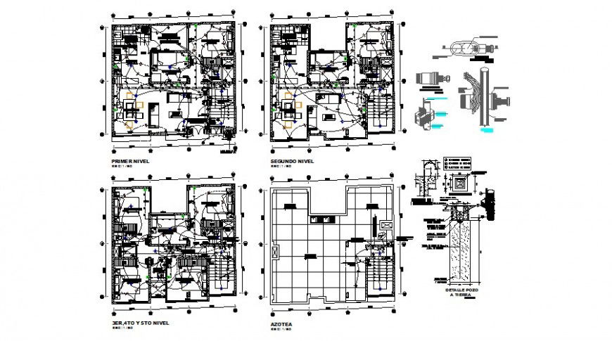
All floors electrical layout plan details of housing apartment building that includes a detailed view of power layout details, lighting layout details, computation and schedule of loads, general notes and specifications, panel board details, riser diagram, convienence details, legends and electric equipment details, cable details, dimensions details and much more of electrical installation details.

Uploaded by:
Eiz
Luna
