Restaurant kitchen detail drawing in AutoCAd file.
Description
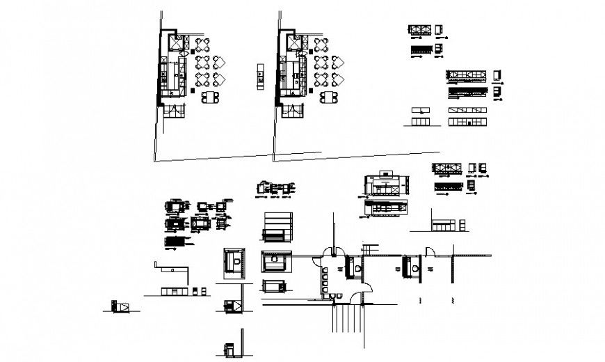
Restaurant kitchen detail drawing in AutoCAd file. This file includes the detail drawing of the restaurant kitchen with top view plan, front elevation, side sectional elevation, kitchen furniture detail, platform detail, dimensions, description, etc.

Uploaded by:
Eiz
Luna
