Hotel layout plan detail drawing in AutoCAD file.
Description
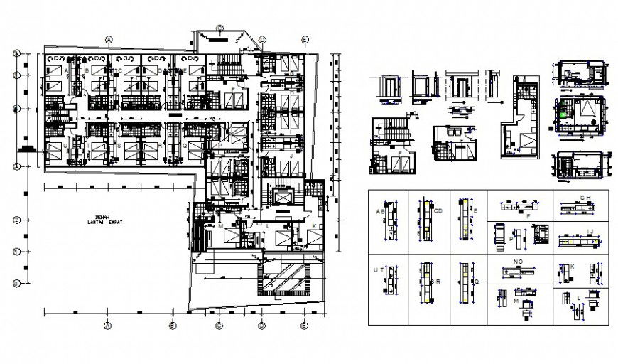
Hotel layout plan detail drawing in AutoCAD file. This file includes the types of bedroom, arrangement of the two single bed, double bedroom plan, typical bedroom detail, toilet block detail, stairs detail, lift door detail, t.v unit, side table, dimensions, etc.

Uploaded by:
Eiz
Luna

