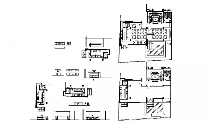
Hotel restaurant setting and kitchen detail drawing in AutoCAD file.
Description
Hotel restaurant setting and kitchen detail drawing in AutoCAD file. This file includes the detail drawing of the hotel restaurant with stairs detail, seating arrangement detail, kitchen plan, kitchen elevation, kitchen detail, description, dimensions, etc.

Uploaded by:
Eiz
Luna

