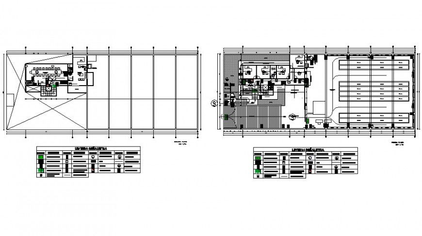
Industry security layout plan detail drawing in AutoCAD file.
Description
Industry security layout plan detail drawing in AutoCAD file. This file includes the detail drawing of the industry with security layout plan, camera placement layout, electrical layout, indicator symbols, section lines, dimensions, etc.

Uploaded by:
Eiz
Luna

