Residential apartment detail 2d view construction plan dwg file
Description
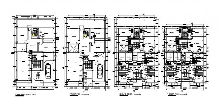
Residential apartment detail 2d view construction plan dwg file, plan view detail, dimension detail, wall and flooring detail, door and window detail, floor level detail, parking space detail, section line detail, hidden line detail, vehicle detail, sanitary toilet and bathroom detail, room dimension detail, staircase detail, RCC structure, etc.

Uploaded by:
Eiz
Luna

