Construction of tower detail 2d view CAD structural block autocad file
Description
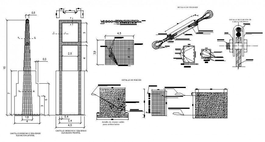
Construction of tower detail 2d view CAD structural block autocad file, front elevation detail, hatching detail, dimension detail, section line detail, reinforcement detail in tension and compression zone, concrete masonry detail, effective cover detail, hook up and bent up bars detail, reinforced concrete cement (RCC) structure, etc.

Uploaded by:
Eiz
Luna

