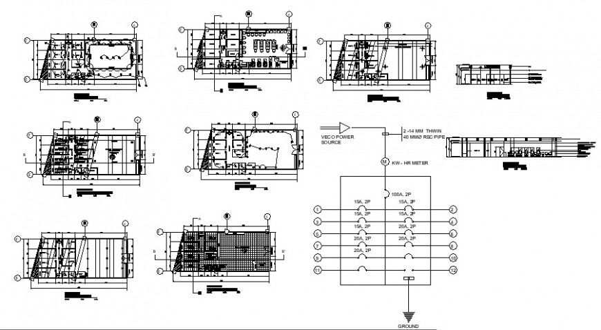
Electrical installation plan in building detail autocad file
Description
Electrical installation plan in building detail autocad file, plan view detail, electrical wirings detail, dimension detail, wall and flooring detail, earthing wire detail, fuse and circuits detail, hidden line detail, circuit flow diagram detail, floor level detail, section line detail, etc.

Uploaded by:
Eiz
Luna

