Architectural project of communal house design drawing
Description
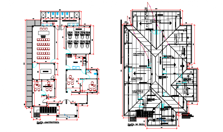
Here the Architectural project of communal house design drawing with ground floor deaign drawing, working layout design drawing, center line layout design drawing, furniture layout design drawing, roof plan layout design drawing in this auto cad file.
Uploaded by:
Eiz
Luna

