proposed Layout of small type living place design drawing
Description
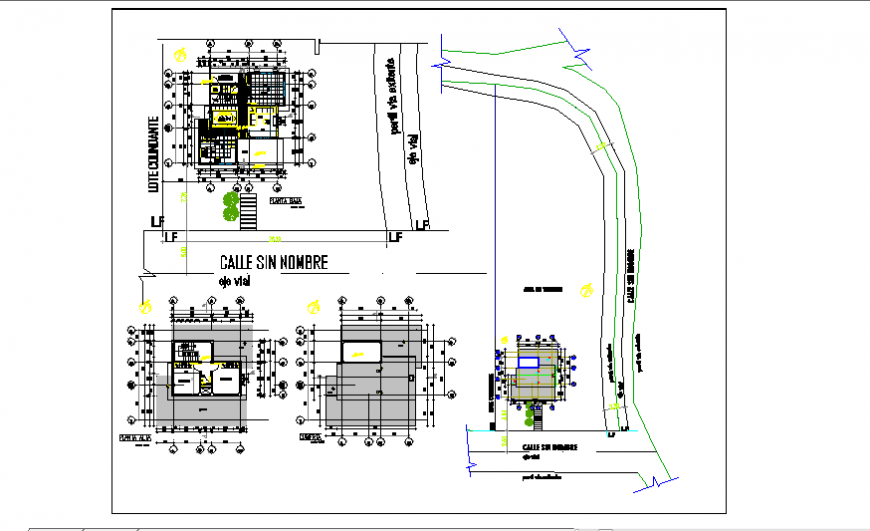
Here the proposed Layout of small type living place design drawing with ground floor design drawing ,first floor design draing, roof top plan design drawing, working layout design drawing, center line layout designer plan drawing, street withput name design drawing, road design drawing in this auto cad file.
Uploaded by:
Eiz
Luna
