Project of Single family home residency design drawing
Description
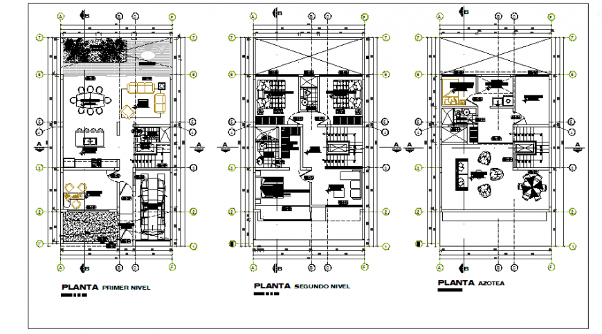
Here the Project of Single family home residency design drawing with groud floor design drawing, first floor design drawing, furniture layout design drawing, working layout design drawing, center line layout design drawing, all detailing design drawing in this auto cad file.
Uploaded by:
Eiz
Luna

