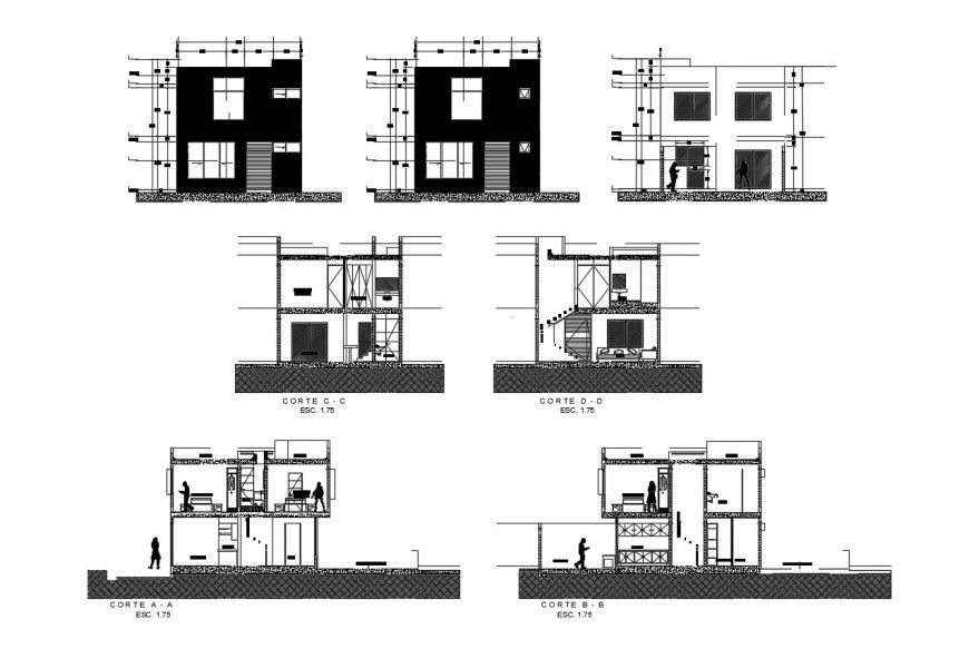
Elevation and sectional of apartment detail 2d view layout file in dwg format
Description
Elevation and sectional of apartment detail 2d view layout file in dwg format, front elevation detail, door and window detail, side elevation detail, rear elevation detail, leveling detail, staircase detail, floor level detail, wall and flooring detail, furniture blocks detail, RCC structure, different sections detail, etc.

Uploaded by:
Eiz
Luna

