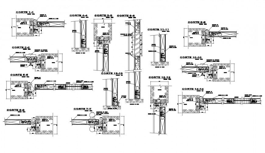
Sectional detail of construction blocks 2d view dwg file
Description
Sectional detail of construction blocks 2d view dwg file, cut out detail, welded and bolted joints and connection detail, dimension detail, naming texts detail, cut out detail, hatching detail, not to scale drawing, etc.
File Type:
DWG
File Size:
565 KB
Category::
Construction
Sub Category::
Construction Detail Drawings
type:
Gold

Uploaded by:
Eiz
Luna

