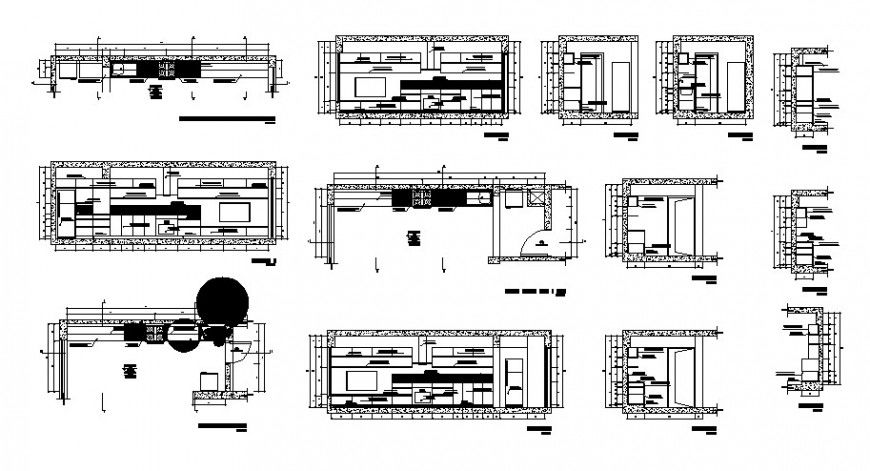
Kitchen construction plan and elevation 2d view autocad file
Description
Kitchen construction plan and elevation 2d view autocad file, plan view dteail, kitchen appliances and furnitures detail, platform detail, gas-stove detail, cabinet and shelves detail, dimension detail, section line detail, front elevation detail, side elevation detail, exhauster chimney detail, drawers and racks detail, etc.
File Type:
DWG
File Size:
3 MB
Category::
Construction
Sub Category::
Kitchen And Remodeling Details
type:
Gold

Uploaded by:
Eiz
Luna

