Public toilet detail drawing in AutoCAD file.
Description
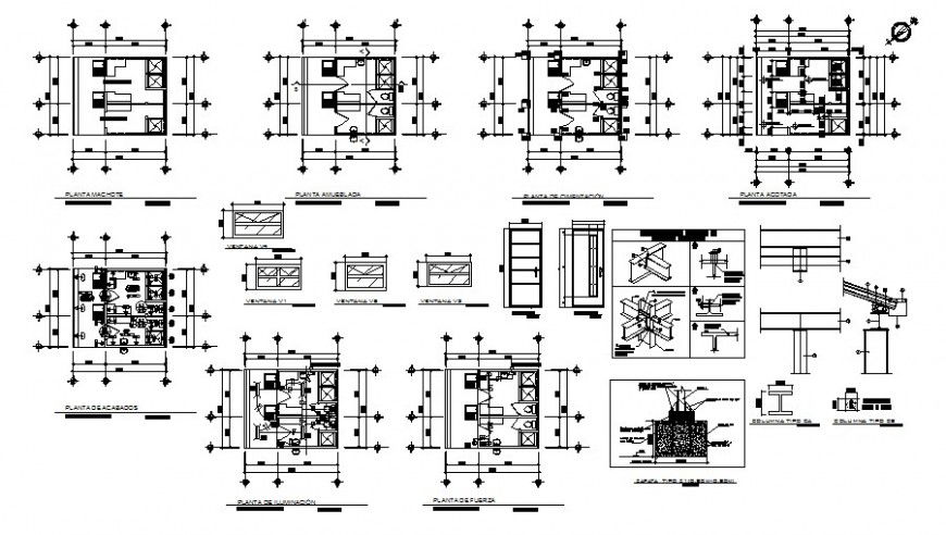
Public toilet detail drawing in AutoCAD file. This file includes the detail drawing of the public toilet with top view plan, layout plan, electrical plan, section detail, footing detail, door detail, ventilation detail, north indication symbol, dimensions, etc.
File Type:
DWG
File Size:
1.1 MB
Category::
Interior Design
Sub Category::
Bathroom Interior Design
type:
Gold

Uploaded by:
Eiz
Luna

