Plan and sectional theater detail 2d view autocad file

Plan and sectional theater detail 2d view autocad file
Profile

Uploaded by:

Eiz

Luna

Description

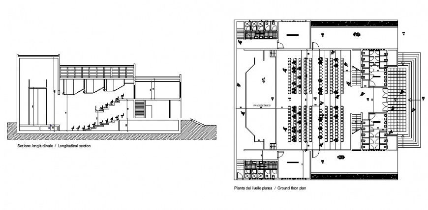
Plan and sectional theater detail 2d view autocad file, furniture units detail, wall and flooring detail, door and window detail, floor level detail, sanitary toilet area detail, section line detail, RCC structure, theater sitting chair detail, stairway detail, section detail, etc.

Profile

Uploaded by:

Eiz

Luna

find Latest

Related Files

WhatsApp Chat