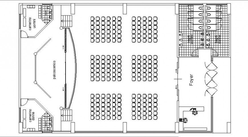
Multi-plex theater detail plan 2d view autocad file
Description
Multi-plex theater detail plan 2d view autocad file, plan view detail, wall and flooring detail, door vent detail, sanitary toilet detail, furniture blocks detail, stairway detail, water closet detail, wash basin detail, RCC structure, revolving door detail, etc.

Uploaded by:
Eiz
Luna

