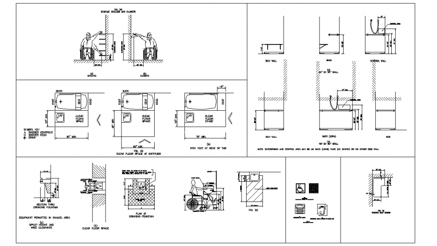
clear floor space at bathtubs & drinking fountain Detail
Description
Clear floor space at bathtubs & drinking fountain Detail, equipment permitted in shaded area, section thru drinking fountain, with seat at head of tub, spout shall be within 3" of front and shall direct flow parallel to front flow shall be a minimum of 4" high
File Type:
DWG
File Size:
—
Category::
Dwg Cad Blocks
Sub Category::
Sanitary CAD Blocks And Model
type:
Gold
Uploaded by:
Eiz
Luna

