Architectural project design drawing of common local municipal building design drawing
Description
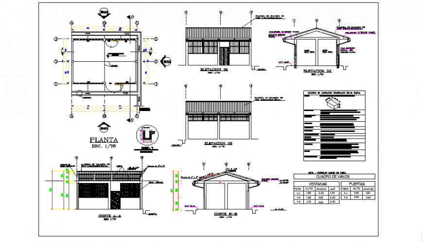
Here the Architectural project design drawing of common local municipal building design drawing with ground floor plan design drawing, working layout plan design, center line plan design, elevation plan design drawing, section plan design drawing, door window table design drawing, TABLE OF FINISHES RURAL JUNGLE design drawing in this auto cad file.
Uploaded by:
Eiz
Luna

