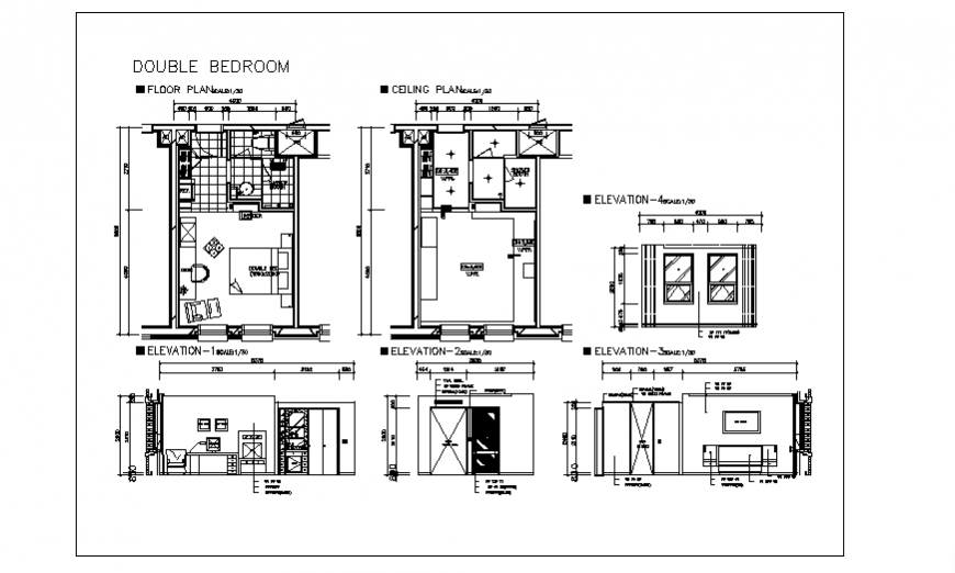
Double bed room design of Twin bed room for hotel room project design drawing
Description
Here the Double bed room design of Twin bed room for hotel room project design drawing with Floor plan design drawing and four side different wall elevation view design drawing and working plan mentioned design drawing, center line plan design drawing in this auto cad file.
Uploaded by:
Eiz
Luna

