Block plan project design of complete residence project design drawing
Description
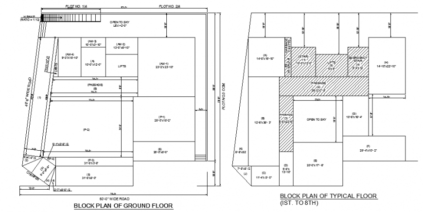
Here the Block plan project design of complete residence project design drawing with ground floor plan design, and typical floor plan design drawing, size and dimension mentioned in this auto cad file.
Uploaded by:
Eiz
Luna

