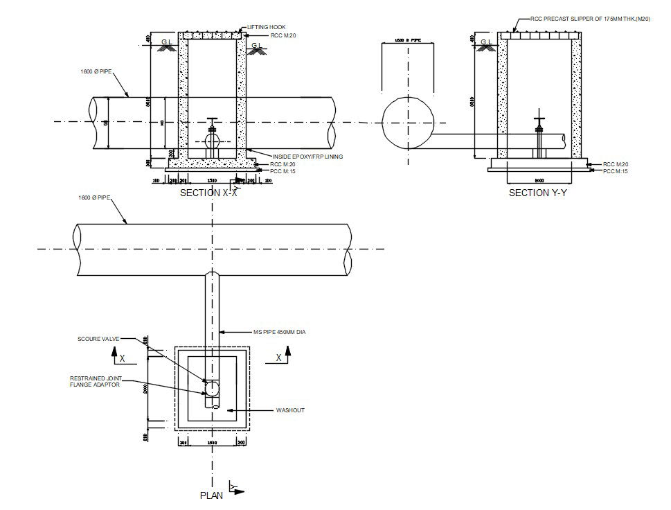
Scour Valve
Description
Scour Valve
For the purpose of releasing air in water mains, a fire hydrant or an air valve shall be installed at the highest point(s) or where required by the Water Supply Operations Manager. They shall be installed so that groundwater cannot enter the main at negative pressure and shall be in a permanent valve box. Details of an air valve are given on Drawing WS 13.
The permanent valve box for air release valves must be capable of enabling sufficient air to enter or escape from the enclosure without inhibiting the airflow performance of the air valve. The selection of the air valve shall be based on its airflow capacity being capable of protecting the pipeline and not be based on the size of the nominal bore of the air release valve to pipeline connection.
Scour valves shall be installed at low points or to facilitate draining of a water main where required by the Water Supply Operations
Manager. Details of a scour valve are given on Drawing WS 14.
In areas where the scouring of mains is needed as a frequent operation, a connection to the stormwater curb outlets, open channels or catch it shall be provided. The connection of a scour valve to stormwater pipes or manholes is not permitted.
Uploaded by:
kaushal
solanki

