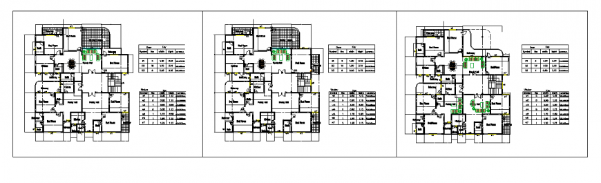
First to Fourth floor plan design of Apartment house design drawing
Description
Here the First to Fourth floor plan design of Apartment house design drawing, first floor to fourth floor plan with working layout file deisgn, center line layout plan design, furniture layout plan design drawing, dooe-window table designed by floor wise designed in this auto cad file.
Uploaded by:
Eiz
Luna

