Section plan design of Apartment house design drawing
Description
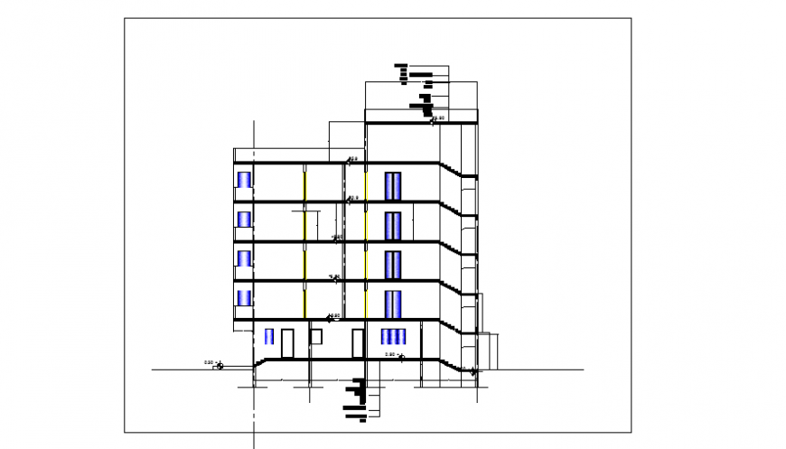
Here the Section plan design of Apartment house design drawing with general section and stair section detail with all types of detailing design mentioned drawing, floor height mentioned and imension mentioned in this auto cad file.
Uploaded by:
Eiz
Luna

