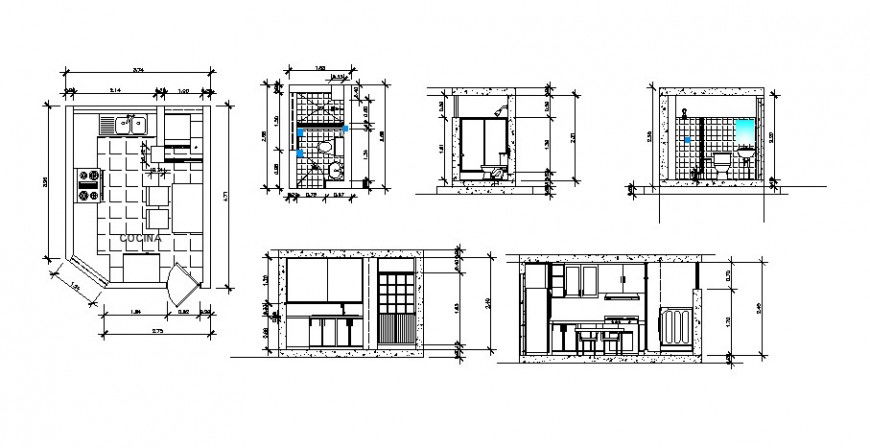
Kitchen plan and sanitary bathroom detail plan and section autocad file
Description
Kitchen plan and sanitary bathroom detail plan and section autocad file, plan view detail, wall and flooring detail, dimension detail, door and window detail, water-closet detail, wash-basin detail, shower units detail, vent detail, kitchen plan detail, platform detail, gas-stove detail, cabinet and shelves detail, etc.
File Type:
DWG
File Size:
259 KB
Category::
Construction
Sub Category::
Kitchen And Remodeling Details
type:
Gold

Uploaded by:
Eiz
Luna
