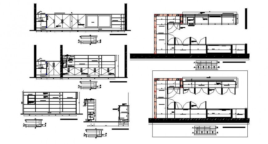
Detail of kitchen plan and elevation 2d view CAD block autocad file
Description
Detail of kitchen plan and elevation 2d view CAD block autocad file, plan view detail, platform detail, cabinet and shelves detail, kitchen sink detail, drawers and racks detail, front elevation detail, dimension detail, gas-stove detail, side elevation detail, etc.
File Type:
DWG
File Size:
300 KB
Category::
Construction
Sub Category::
Kitchen And Remodeling Details
type:
Gold

Uploaded by:
Eiz
Luna
