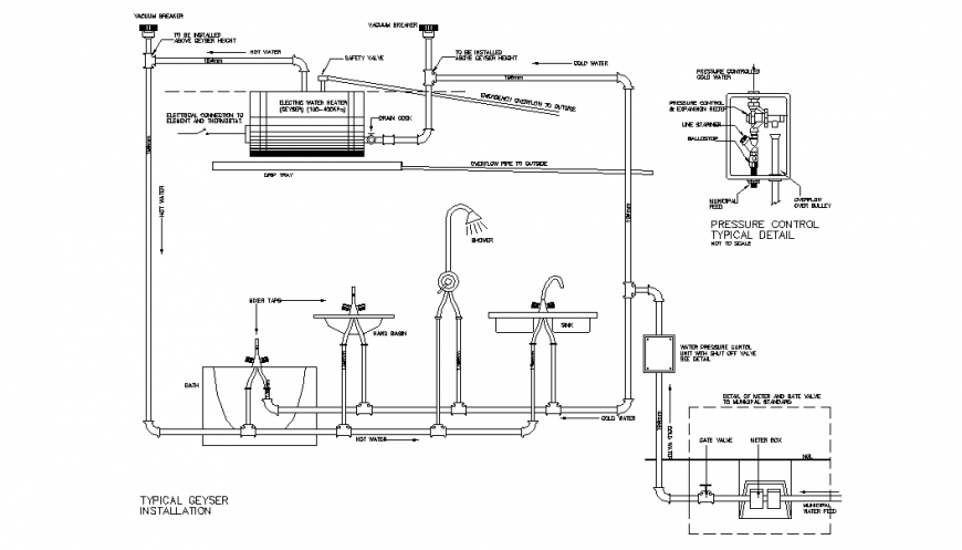
Typical geyser installation Diagram Design
Description
Typical geyser installation Diagram Design, detail of meter and gate valve to municipal standard, water pressure control unit with shut off valve see detail, to be installed above geyser height, pressure control & expansion relief.
Uploaded by:
Eiz
Luna

