Hotel bedroom interior layout drawing in dwg AutoCAD file.
Description
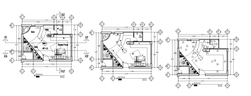
Hotel bedroom interior layout drawing in dwg AutoCAD file. This drawing includes the detail bedroom interior layout plan with a king size bed, an attached toilet with a bathtub, washbasin, and separate W.C., and internal garden with description and dimensions.
Uploaded by:
Eiz
Luna

