Housing project plan and detail drawing in dwg AutoCAD file.
Description
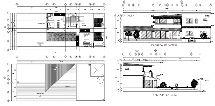
Housing project plan and detail drawing in dwg AutoCAD file. This drawing includes the top view layout plan of the house with section lines and dimensions, roof detail layout plan drawing, front façade elevation, lateral elevation with detail dimensions.
Uploaded by:
Eiz
Luna

