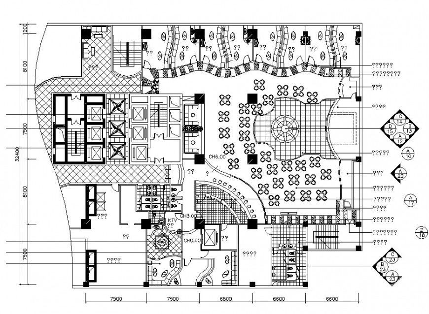
Hotel building Structural detail of CAD block layout file in autocad format
Description
Hotel building Structural detail of CAD block layout file in autocad format, rooms detail, wall and flooring detail, furniture detail, dimension detail, plan view detail, floor level detail, kitchen area detail, door and window detail, staircase detail, dining area detail, sofa-set detail, lobby detail, table and chair detail, hatching detail, not to scale drawing, sanitary toilet and wash-room area detail, vent detail, etc.
Uploaded by:
Eiz
Luna

