Staircase railing section and plan details dwg file
Description
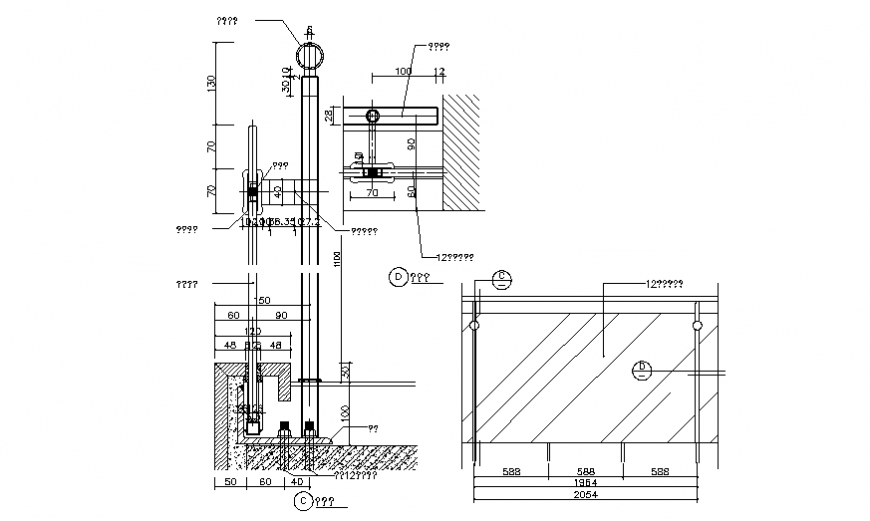
Staircase railing section and plan details that includes a detailed view of railing design block with size details, colors details, joints details, cuts details, type details, dimensions details etc for multi purpose uses for cad projects.
Uploaded by:
Eiz
Luna

