Modern concept top view plan detail, elevation of bathroom dwg file
Description
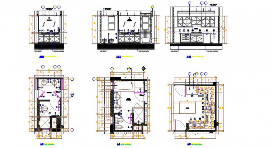
Modern concept top view plan detail, elevation of bathroom dwg file,Bathroom front elevation details,here there is 2d detailing of bathroom, its sectional details ,bath tub detail are shown with tiles and faucets details
File Type:
DWG
File Size:
4.4 MB
Category::
Interior Design
Sub Category::
Bathroom Interior Design
type:
Gold
Uploaded by:
Eiz
Luna
