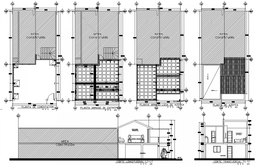
Housing permit plan detail drawing in dwg AutoCAD file.
Description
Housing permit plan detail drawing in dwg AutoCAD file. This drawing includes the indication of area which has the construction permit highlighted. Exterior sectional elevation of the house and interior sectional elevation of the house with detail section lines and dimensions.
Uploaded by:
Eiz
Luna

