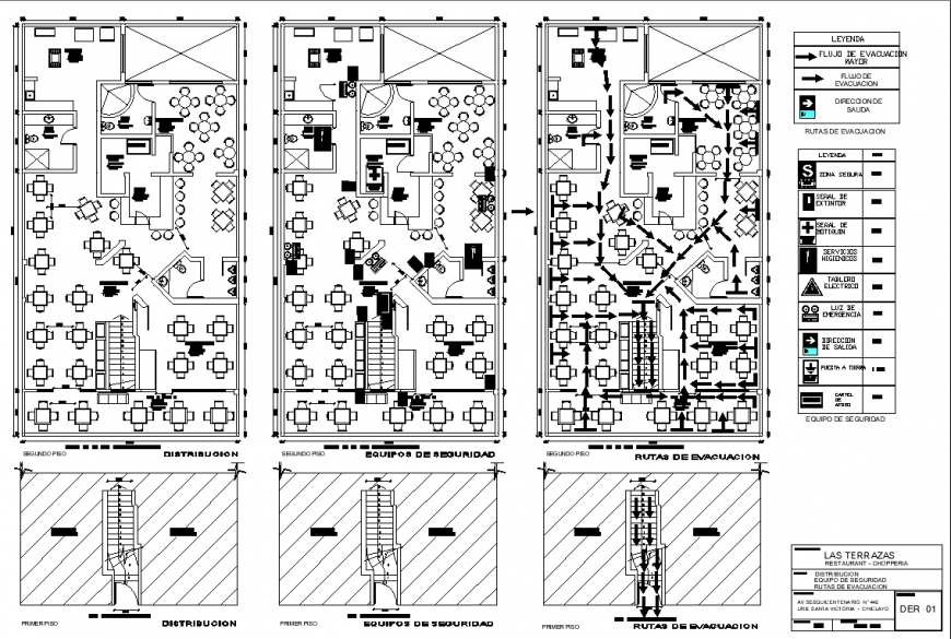
Restaurant layout and services layout drawing in dwg AutoCAD file.
Description
Restaurant layout and services layout drawing in dwg AutoCAD file. This drawing includes the furniture layout plan of the restaurant, different services indication signage, ac air flow layout with detail description, dimensions and legend. Flooring detail layout plan of the restaurant.
Uploaded by:
Eiz
Luna

