Toilet block detail layout drawing in dwg AutoCAD file.
Description
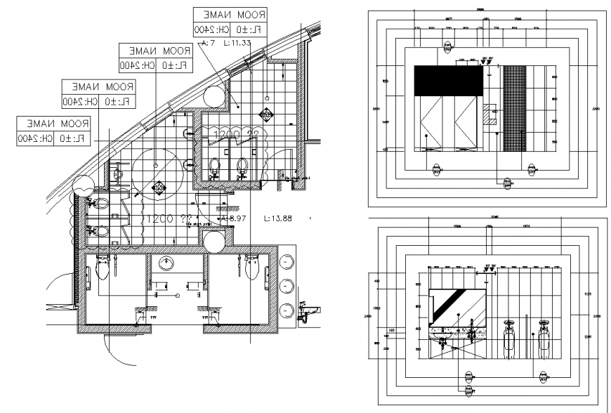
Toilet block detail layout drawing in dwg AutoCAD file. This drawing includes the detail layout plan of the toilet with W.C detail drawing, sectional wall elevation of the toilet, sectional elevation of the W.C wall with dimensions.
File Type:
DWG
File Size:
1.4 MB
Category::
Interior Design
Sub Category::
Bathroom Interior Design
type:
Gold
Uploaded by:
Eiz
Luna

