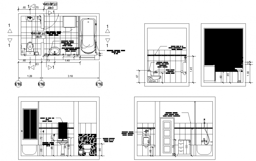
Bathroom and toilet detail drawing in dwg AutoCAD file.
Description
Bathroom and toilet detail drawing in dwg AutoCAD file. This drawing includes the detail top view layout plan of the bathroom with bathtub, washbasin, and W.C area. Detail sectional wall elevation of the bathroom with detail dimensions and description.
File Type:
DWG
File Size:
349 KB
Category::
Interior Design
Sub Category::
Bathroom Interior Design
type:
Gold
Uploaded by:
Eiz
Luna

