Pool changing room detail drawing in dwg AutoCAD file.
Description
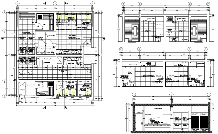
Pool changing room detail drawing in dwg AutoCAD file. This drawing includes the detail layout plan of the pool changing room with detail dimensions and section lines, detail wall elevation with detail description and dimensions. Sectional elevation of the pool side changing room.
File Type:
DWG
File Size:
336 KB
Category::
Interior Design
Sub Category::
Bathroom Interior Design
type:
Gold
Uploaded by:
Eiz
Luna
