Gents public toilet detail drawing in dwg AutoCAD file.
Description
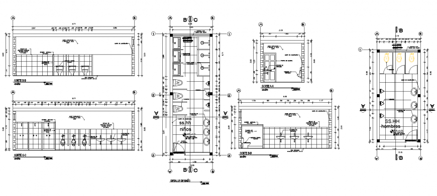
Gents public toilet detail drawing in dwg AutoCAD file. This drawing includes the detail layout plan of the gents public toilet with detail dimensions. All wall internal wall elevation with detail dimensions and tile cladding, and side sectional elevation of the urinal with dimensions.
File Type:
DWG
File Size:
248 KB
Category::
Interior Design
Sub Category::
Bathroom Interior Design
type:
Gold
Uploaded by:
Eiz
Luna

