Housing structure plan detail CAD constructive units layout autocad file
Description
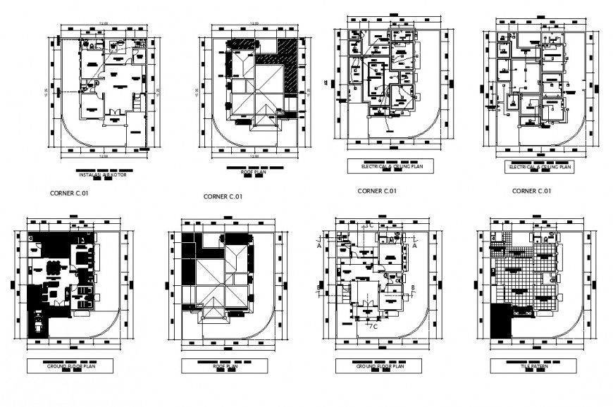
Housing structure plan detail CAD constructive units layout autocad file, plan view detail, wall and floorings detail, roof plan detail, floor level detail, room dimension detail, sanitary toilet and bathroom detail, door and window detail, RCC structure, section line detail, staircase detail, ceiling plan detail, electrical installation detail, earthing wire detail, roofing material detail, earthing wires detail, etc.
Uploaded by:
Eiz
Luna

