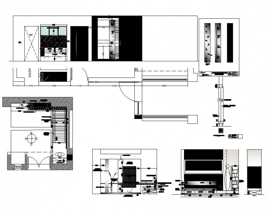
Drawing room interiors detail CAD structural unit layout file in autocad file
Description
Drawing room interiors detail CAD structural unit layout file in autocad file, plan view detail, wall and flooring detail, door and window detail, namings detail, dimension detail, furniture detail, TV unit detail, sofa-set detail, drawers and cabinet detail, not to scale drawing, front elevation detail, etc.
Uploaded by:
Eiz
Luna

