An Electrical house plan detail dwg file
Description
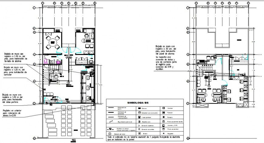
A Electrical house plan detail dwg file, centre line plan detail, dimension detail, naming detail, brick wall detail, cut out detail, specification detail, furniture detail in door, window, table, chair, sofa and cub board detail, not to scale detail, etc.
Uploaded by:
Eiz
Luna

