House Line Plan Layout in AutoCAD DWG Drawing File
Description
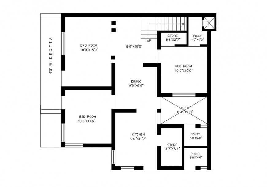
A House line plan autocad file, brick wall detail, flooring detail, planning detail in kitchen, store, dinning, drawing room, bedroom and toilet detail, store room detail, stair detail, cut out detail, not to scale detail, hatching detail, furniture detail in door and window detail, etc.
Uploaded by:
Eiz
Luna

