Foundation plan, elevation and section autocad file
Description
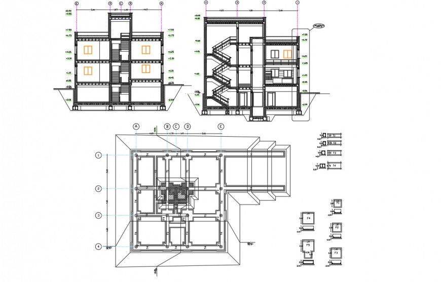
Foundation plan, elevation and section autocad file, centre line plan detail, dimension detail, naming detail, column section detail, Thickness detail, front elevation detail, section A-A’ detail, stair section detail, furniture detail in door and window detail, etc.
Uploaded by:
Eiz
Luna

