College institute building detail 2d view layout plan in autocad format
Description
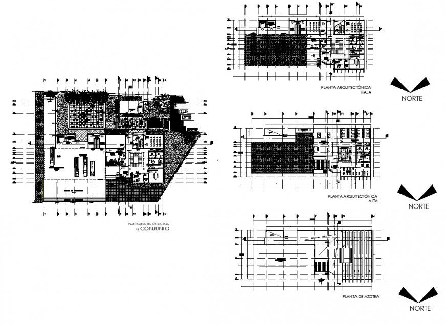
College institute building detail 2d view layout plan in autocad format, floor level detail, numberings detail, door and window detail, wall and flooring detail, sanitary toilet detail, hidden line detail, hatching detail, parking space detail, landscaping trees detail, RCC structure, plan view detail, not to scale drawing, north direction detail, furniture detail, staircase detail, section line detail, etc.

Uploaded by:
Eiz
Luna

