Commercial building school electrical plan layout file
Description
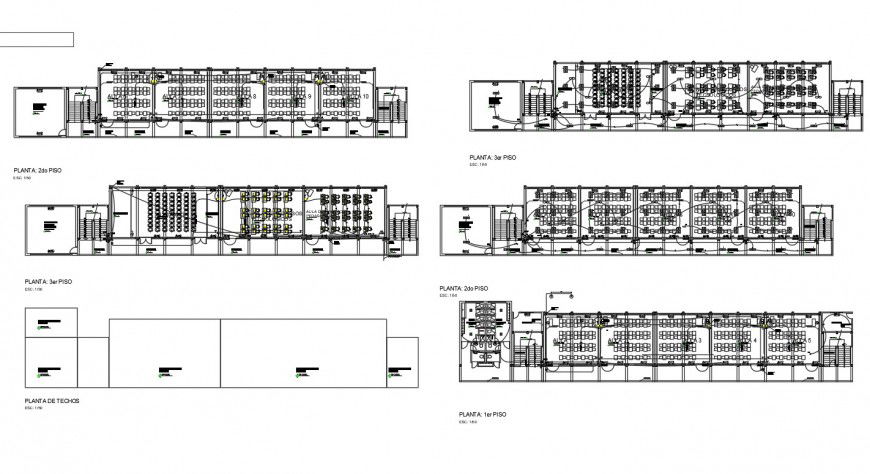
Commercial building school electrical plan layout file, ground floor to terrace floor plan detail, furniture detail in door, window, table and chair detail, brick wall detail, flooring detail, not to scale detail, stair detail, scale 1:500 detail, etc.
Uploaded by:
Eiz
Luna
