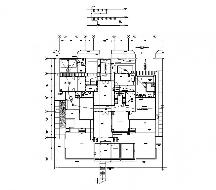
Electrical fittings in a building detail CAD block layout file in dwg format
Description
Electrical fittings in a building detail CAD block layout file in dwg format, wall and flooring detail, door and window detail, staircase detail, single story structure, electrical wiring detail, earthing wire detail, RCC structure, fuse detail, plug and switch detail, numberings detail, dimension detail, not to scale drawing, etc.

Uploaded by:
Eiz
Luna

