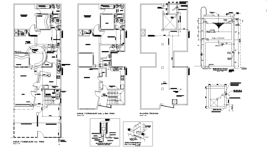
House electrical detail layout plan in dwg AutoCAD file.
Description
House electrical detail layout plan in dwg AutoCAD file. This file includes the detail layout plan of the ground floor, first floor and second floor detail electrical layout with detail description and dimensions. Geyser detail perspective view drawing with dimensions.

Uploaded by:
Eiz
Luna

