Plan and section multi story office detail dwg file
Description
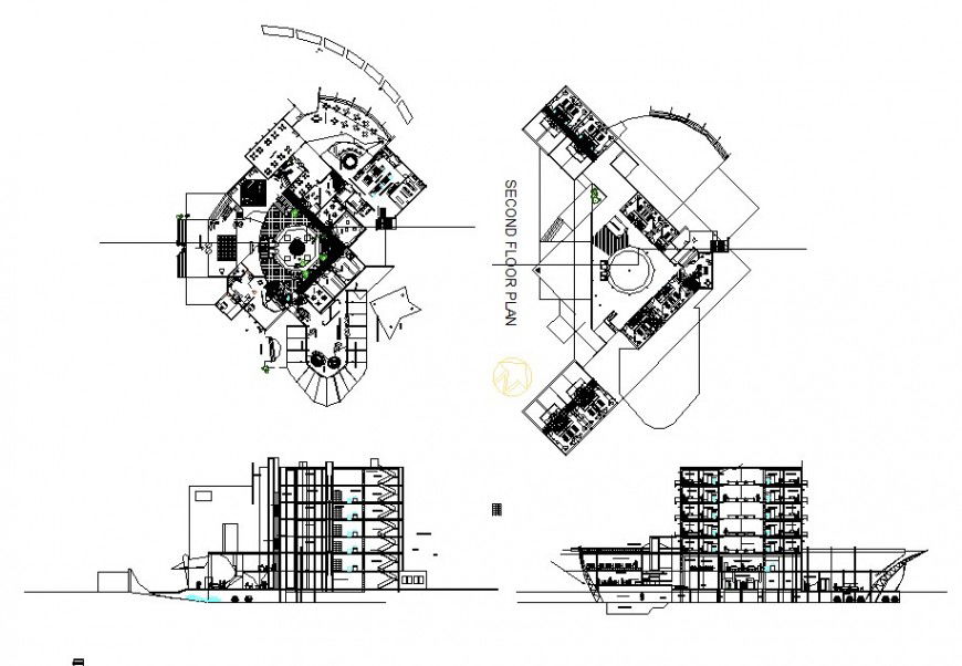
Plan and section multi story office detail dwg file, section line detail, section A-A’ detail, section B-B’ detail, stair section detail, projection detail, furniture detail in door, window, table and chair detail, top elevation detail, steel framing detail, etc.
Uploaded by:
Eiz
Luna
